Фахверк-2
Характеристики
Общая площадь
Размеры дома
Количество спален
Санузлы
160 м²
10,3 х 9,5 м
3
1
6 811 500 руб.
* цена указана за теплый контур для региона
Фахверк
Москва
Санкт-Петербург
7 492 650 руб.
Площадь терассы
25 м²
Москва
Санкт-Петербург
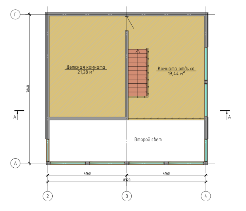
Планировки
О проекте
1 этаж
2 этаж
Хотите изменить планировку?
Архитектор на основании ваших идей создаст индивидуальную планировку, внесёт корректировки в фасад. Вы можете встретиться в офисе или в любом другом удобном для вас месте.
О проекте
Проект дома в стиле "Фахверк"
Стильный дизайн в гармонии с природой.
Планировка включает в себя все необходимое
Просторная кухня-гостиная, три спальни, санузел, терраса.
Любая перепланировка, увеличение или уменьшение площади дома.
Особенности проекта
С терассой
С планировкой
Двухэтажные дома
С 3 спальнями
До 200 кв.м
Фахверк
Двускатная крыша
Большие окна