Современный-20




Характеристики
Общая площадь
Размеры дома
Количество спален
Санузлы
292,2 м²
10 х 17 м
5
3
Площадь терассы
40 м²
* цена указана за теплый контур для региона
Санкт-Петербург
9 907 500 руб.
Каркасный дом
9 247 000 руб.
Дом из газобетона
Планировки
Комплектация
О проекте
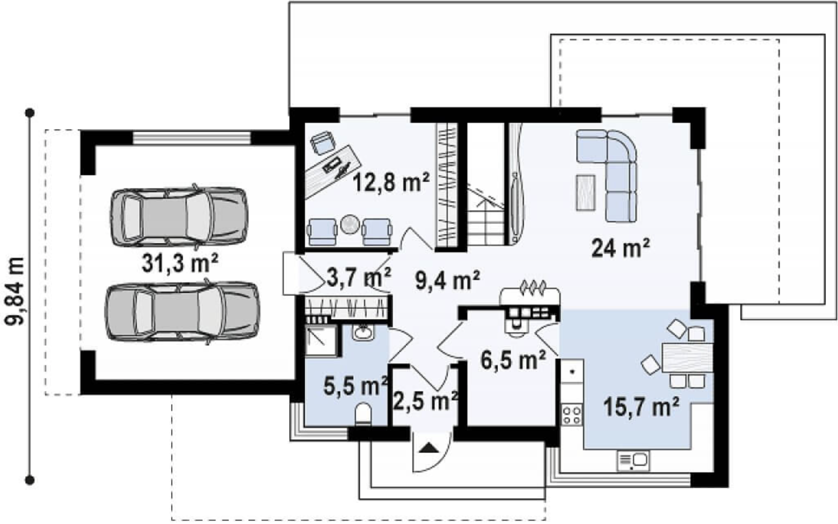
1 этаж
2 этаж
Хотите изменить планировку?
Архитектор на основании ваших идей создаст индивидуальную планировку, внесёт корректировки в фасад. Вы можете встретиться в офисе или в любом другом удобном для вас месте.
Комплектация каркасного дома
ПРОЕКТНЫЕ РАБОТЫ
.
.
.
Холодный контур
Теплый контур
Предчистовая
Индивидуальная перепланировка
Эскизный проект
3D - визуализация фасадов
Архитектурные решения (АР)
Конструкции деревянные (КД)
Конструкции железобетонные (КЖ)
Привязка дома к участку
СИЛОВОЙ КАРКАС НЕСУЩИХ СТЕН
Базовая.
.
.
Холодный контур
Теплый контур
Предчистовая
Стойки каркаса – строганная доска камерной сушки сечением 45x195 мм, шаг 580 мм
Врезные укосины – строганная доска камерной сушки сечением 20x145 мм
Нижняя обвязка стен - строганная доска камерной сушки сечением 45x195 мм
Обвязочный верхний пояс – строганная доска камерной сушки сечением 45x195 мм
СИЛОВОЙ КАРКАС ВНУТРЕННИХ ПЕРЕГОРОДОК
.
.
.
Холодный контур
Теплый контур
Предчистовая
Вертикальные стойки – строганная доска камерной сушки сечением 45x95/145 мм, шаг 580 мм
Врезные укосины – строганная доска камерной сушки сечением 20х145 мм
Нижняя обвязка стен - строганная доска камерной сушки сечением 45x95/145 мм
Обвязочный верхний пояс – строганная доска камерной сушки сечением 45x95/145 мм
Ригель несущих перегородок – строганная доска камерной сушки сечением 45х195 мм
ПОЛ 2-ОГО ЭТАЖА
.
.
.
Холодный контур
Теплый контур
Предчистовая
Лаги – строганная доска камерной сушки сечением 45х195мм, шаг 580 мм
Укладка ламината (материал заказчика) - комплектация "Под ключ"
СТРОПИЛЬНАЯ СИСТЕМА
.
.
.
Холодный контур
Теплый контур
Предчистовая
Стропила – составные балки из строганной доски камерной сушки сечением 45x290 мм (195+95), шаг 580 мм
Затяжка – строганная доска камерной сушки сечением 50x200 мм, шаг 580 мм

Ригель – строганная доска камерной сушки сечением 45х195 мм
Конек – строганная доска камерной сушки сечением 95x145 мм
НАРУЖНАЯ ОТДЕЛКА
.
.
.
Холодный контур
Теплый контур
Предчистовая
Отделка стен - имитация бруса 20х146 мм или 20х196, окрашенная на производстве(1 слой грунта +2 слоя краски), профиль на выбор, краска TEKNOS
Отделка стен - Скандинавская фасадная доска с тонкопиленой поверхностью 20х145, окрашенная на производстве (1 слой грунта + 2 слоя краски), гарантия 8 лет, профиль на выбор, краска TEKNOS, либо покрытие лессирующим составом.
Гидроветрозащитаная мембрана – Tyvek housewrap (пр-во Люксембург) для наружных стен
Контробрешетка/вентиляционный зазор – сухой брусок камерной сушки сечением 40x40 мм
Отливы металлические на окна, крашенные в цвет окон

Карнизные свесы/наличники оконных и дверных проемов/углы дома – строганная доска камерной сушки, окрашенная на производстве, под цвет дома

Карнизные свесы/наличники оконных и дверных проемов/углы дома – Скандинавская фасадная доска с тонкопиленой поверхностью 20х145, окрашенная на производстве (1 слой грунта +2 слоя краски), гарантия 8 лет, краска TEKNOS

Защита от проникновения грызунов - стальная оцинкованная сетка 7х7мм

Входные лестницы, строганная доска камерной сушки, окрашенная на производстве, под цвет дома

КРОВЛЯ
.
.
.
Холодный контур
Теплый контур
Предчистовая
Покрытие – металлочерепица Металлопрофиль с покрытием премиум класса «Viking MP-E», сталь 0,5 мм, цинк 270 гр/м2

Обрешетка – строганная доска камерной сушки сечением 20х95 мм

Контробрешетка/вентиляционный зазор – брусок камерной сушки 45х45 мм

Подкровельная гидро/ветро -изоляция - мембрана «Tyvek soft» (пр-во Люксембург)

Водосточная система «Docke Premium»

УТЕПЛЕНИЕ
.
.
.
Холодный контур
Теплый контур
Предчистовая
Наружные стены – 250 мм (100 + 100 + 50 мм) перекрестно, плитный базальтовый утеплитель «Paroc Extra»

Межэтажное перекрытие – 100 мм плитный базальтовый утеплитель «Paroc Extra»

Перегородки – 100 мм плитный базальтовый утеплитель «Paroc Extra»

Кровля – 300 мм плитный базальтовый утеплитель «Paroc Extra»

Пароизоляция – «Tyvek» с герметичной проклейкой всех стыков, ленты для герметизации 3М/ Delta/ Tyvek

Защита помещений от проникновения частиц утеплителя - крафт бумага с проклейкой швов

ВНУТРЕННЯЯ ОТДЕЛКА, КОМБИНИРОВАННАЯ
.
.
.
Холодный контур
Теплый контур
Предчистовая
Обрешетка – строганный брусок камерной сушки сечением 20x40 мм

Гипсокартон влагостойкий Knauf по металлическому каркасу – стены санузлов

Отделка стен и потолков - панель "TASA" хвойных пород 16x145 мм, сорт АБ

Покраска внутренних помещений (1 слой грунта + 2 слоя краски), краска TEKNOS или покрытие лессирующим составом - комплектация "Под ключ"

Грунтовка, шпатлёвка гипсокартона - комплектация "Под ключ"

Отделка керамогранитной плиткой – полы, стены санузлов (плитка Заказчика) - комплектация "Под ключ"


Отделка керамогранитной плиткой – полы, стены санузлов (плитка Заказчика) - комплектация "Под ключ"


Монтаж сантехники – раковины, унитазы, душевые, смесители и т.д. (материал заказчика) - комплектация "Под ключ"
Монтаж электроприборов – розетки, выключатели, люстры, бра и т.д. (материал заказчика) - комплектация "Под ключ"
НАСТИЛ ПОЛОВ
.
.
.
Холодный контур
Теплый контур
Предчистовая
Настил пола – влагостойкая шпунтованная плита Quick Deck Professional 22 мм

ОКНА
.
.
.
Холодный контур
Теплый контур
Предчистовая
ПВХ Rehau Grazio, пятикамерный профиль 70 мм, белые, двухкамерный энергосберегающий стеклопакет, поворотно откидные

Наружные отливы - металлические, наружные откосы - скандинавская фасадная доска с тонкопиленой поверхностью, окрашенная на производстве

Внутренние откосы и подоконники - мебельный щит 18мм, массив ель/сосна, сорт АБ

ДВЕРИ
.
.
.
Холодный контур
Теплый контур
Предчистовая
Входная – утепленная дверь «Jeld-Wen Basic», пр-во Финляндия

Межкомнатные двери (материал заказчика) - комплектация "Под ключ"

КРЫЛЬЦО И ТЕРРАСА
.
.
.
Холодный контур
Теплый контур
Предчистовая
Каркас, перила из сухой строганной доски, пол - террасная доска, из хвойных пород (ель, сосна), с рифлёной поверхностью «Вельвет», исключающей скольжение, балясины и заходные столбы заводские, точёные, камерной сушки

ЛЕСТНИЦА
.
.
.
Холодный контур
Теплый контур
Предчистовая
Комплект заводской лестницы с монтажом и покраской

АНТИСЕПТИРОВАНИЕ
.
.
.
Холодный контур
Теплый контур
Предчистовая
Neomid 430 – обвязка, лаги пола, черновой пол
КРЕПЕЖ
.
.
.
Холодный контур
Теплый контур
Предчистовая
Полный комплект крепежа. Сборка каркаса производится на оцинкованные гвозди, Перфорированный крепеж для деревянных конструкций - уголки, опоры, держатели балок - Петротех, монтаж на металлконекторные гвозди с D-головкой, конструкционные саморезы TORX

ИНЖЕНЕРНЫЕ КОММУНИКАЦИИ
.
.
.
Холодный контур
Теплый контур
Предчистовая
Электрика: щиток распределенный, автоматические выключатели, УЗО общедомовое противопожарное, скрытый монтаж электропроводов по точкам кабелем ВВГнг

Водоснабжения и канализации: разводка труб водоснабжения (полипропилен) по точкам; разводка канализационных (фановых) труб по точкам, соединение под домом

Вентиляция (Приточно-вытяжная система): клапаны инфильтрации воздуха КИВ; воздуховод пластиковый, гофра алюминиевая, продухи чердачного помещения

Отопление: коллекторная группа; разводка труб отопления на полипропилене d=25 мм

Станция биологической очистки и её монтаж: АКС ST 5 (или аналог); монтаж на участке; подключение канализационной - комплектация "Под ключ"

Показать всё
Комплектация дома из газобетона
ПРОЕКТНЫЕ РАБОТЫ
.
.
.
Холодный контур
Теплый контур
Предчистовая
Индивидуальная перепланировка
Эскизный проект
3D - визуализация фасадов
Архитектурные решения (АР)
Конструкции деревянные (КД)
Конструкции железобетонные (КЖ)
Привязка дома к участку
МАТЕРИАЛ НЕСУЩИХ СТЕН
.
.
.
Холодный контур
Теплый контур
Предчистовая
Газобетон "Aeroc", толщина 375 мм, 375х250х625
Клей - пена для газобетона
Арматура d-8 A3
ПЕРЕКРЫТИЕ
.
.
.
Холодный контур
Теплый контур
Предчистовая
Монолитное железобетонное перекрытие 160 мм, бетон М400, арматура D12мм

Укладка ламината - плитки (материал заказчика)
СТРОПИЛЬНАЯ СИСТЕМА
.
.
.
Холодный контур
Теплый контур
Предчистовая
Стропила – составные балки из строганной доски камерной сушки сечением 45x290 мм (195+95), шаг 580 мм
Затяжка – строганная доска камерной сушки сечением 50x200 мм, шаг 580 мм

Ригель – строганная доска камерной сушки сечением 45х195 мм
Конек – строганная доска камерной сушки сечением 95x145 мм
НАРУЖНАЯ ОТДЕЛКА (Комбинированная)
.
.
.
Холодный контур
Теплый контур
Предчистовая
Отделка стен - Скандинавская фасадная доска с тонкопиленой поверхностью 20х145, окрашенная на производстве (1 слой грунта + 2 слоя краски), гарантия 8 лет, профиль на выбор, краска Tikkurilla, либо покрытие лессирующим составом.
Отделка стен – фасадные фибробетонные панели «Каньем»
Отделка стен – сикатно селиконовая фасадная штукатурка Ceresit
Основание под штукатурку - Quick Deck Professional
Гидроветрозащитаная мембрана – Tyvek housewrap (пр-во Люксембург) для наружных стен
Контробрешетка/вентиляционный зазор – сухой брусок камерной сушки сечением 40x40 мм
Отливы металлические на окна, крашенные в цвет окон

Карнизные свесы/наличники оконных и дверных проемов/углы дома – строганная доска камерной сушки, окрашенная на производстве, под цвет дома

Подшива свесов кровли и террасы/углы дома – строганная доска камерной сушки, окрашенная на производстве, под цвет дома
Защита от проникновения грызунов - стальная оцинкованная сетка 7х7мм

Защита от проникновения насекомых в свесы кровли - москитная сетка
Входные лестницы, строганная доска камерной сушки, окрашенная на производстве, под цвет дома

КРОВЛЯ
.
.
.
Холодный контур
Теплый контур
Предчистовая
Покрытие – металлочерепица Металлопрофиль с покрытием премиум класса «Viking MP-E», сталь 0,5 мм, цинк 270 гр/м2

Обрешетка – строганная доска камерной сушки сечением 20х95 мм

Контробрешетка/вентиляционный зазор – брусок камерной сушки 45х45 мм

Подкровельная гидро/ветро -изоляция - мембрана «Tyvek soft» (пр-во Люксембург)

Снегозадержатели
Водосточная система «Docke Premium»

УТЕПЛЕНИЕ
.
.
.
Холодный контур
Теплый контур
Предчистовая
Наружные стены – 50 мм утеплитель Технониколь Техноблок Стандарт 50 кг/м
Пароизоляция – «Tyvek» с герметичной проклейкой всех стыков, ленты для герметизации 3М/ Delta/ Tyvek
Защита помещений от проникновения частиц утеплителя - крафт бумага с проклейкой швов
ВНУТРЕННЯЯ ОТДЕЛКА, КОМБИНИРОВАННАЯ
.
.
.
Холодный контур
Теплый контур
Предчистовая
Подготовка - машинная штукатурка, выравнивание стен по маякам
Покраска внутренних помещений
(1 слой грунта + 2 слоя краски), краска TEKNOS. Либо покрытие лессирующим составом.
Грунтовка, шпатлёвка стен
Отделка керамогранитной плиткой – полы, стены санузлов (плитка Заказчика)
Отделка керамогранитной плиткой полов – входной зоны, кухонной зоны прачечной, котельной, (плитка Заказчика)
Отделка полов ламинатом (ламинат Заказчика)
Монтаж сантехники – раковины, унитазы, душевые, смесители и т.д. (материал заказчика)
Монтаж электроприборов – розетки, выключатели, люстры, бра и т.д. (материал заказчика)
ОКНА
.
.
.
Холодный контур
Теплый контур
Предчистовая
ПВХ Rehau Grazio, пятикамерный профиль 70 мм, белые, двухкамерный энергосберегающий стеклопакет, поворотно откидные

Наружные отливы - металлические, наружные откосы - скандинавская фасадная доска с тонкопиленой поверхностью, окрашенная на производстве

Внутренние откосы и подоконники - мебельный щит 18мм, массив ель/сосна, сорт АБ

ДВЕРИ
.
.
.
Холодный контур
Теплый контур
Предчистовая
Входная – утепленная дверь «Jeld-Wen Basic», пр-во Финляндия

Межкомнатные двери (материал заказчика) - комплектация "Под ключ"

КРЫЛЬЦО И ТЕРРАСА
.
.
.
Холодный контур
Теплый контур
Предчистовая
Каркас, перила из сухой строганной доски, пол - террасная доска, из хвойных пород (ель, сосна), с рифлёной поверхностью «Вельвет», исключающей скольжение, балясины и заходные столбы заводские, точёные, камерной сушки

ЛЕСТНИЦА
.
.
.
Холодный контур
Теплый контур
Предчистовая
Комплект заводской лестницы с монтажом и покраской

АНТИСЕПТИРОВАНИЕ
.
.
.
Холодный контур
Теплый контур
Предчистовая
Pirilax – Кровля и терраса
КРЕПЕЖ
.
.
.
Холодный контур
Теплый контур
Предчистовая
Полный комплект крепежа. Сборка каркаса производится на оцинкованные гвозди, Перфорированный крепеж для деревянных конструкций - уголки, опоры, держатели балок - Петротех, монтаж на металлконекторные гвозди с D-головкой, конструкционные саморезы TORX

ИНЖЕНЕРНЫЕ КОММУНИКАЦИИ
.
.
.
Холодный контур
Теплый контур
Предчистовая
Электрика: щиток распределенный, автоматические выключатели, УЗО общедомовое противопожарное, скрытый монтаж электропроводов по точкам кабелем ВВГнг

Водоснабжения и канализации: разводка труб водоснабжения (полипропилен) по точкам; разводка канализационных (фановых) труб по точкам, соединение под домом

Вентиляция (Приточно-вытяжная система): клапаны инфильтрации воздуха КИВ; воздуховод пластиковый, гофра алюминиевая, продухи чердачного помещения

Отопление: коллекторная группа; разводка труб отопления на полипропилене d=25 мм

Станция биологической очистки и её монтаж: АКС ST 5 (или аналог); монтаж на участке; подключение канализационной - комплектация "Под ключ"

Показать всё
О проекте
Проект современного двухэтажного дома
Прогрессивные технологии и рациональная планировка. Минимализм, хайтек и фьюжн — основные черты стилей присущие данному типу коттеджей. Для тех, кто всегда в курсе событий, кто идет в ногу со временем.
Планировка включает в себя все необходимое
Большая кухня-гостиная с камином, пять спален, три санузла, терраса, гараж на две машины.
Любая перепланировка, увеличение или уменьшение площади дома.
Особенности проекта
С терассой
С планировкой
Двухэтажные дома
С 5 спальнями
Более 200 кв.м
Хай-тек
Минимализм
3 санузла
Вас могут заинтересовать
следующие проекты